Skip to main content
Home
About
Projects
Contact
Home
About
Projects
Contact
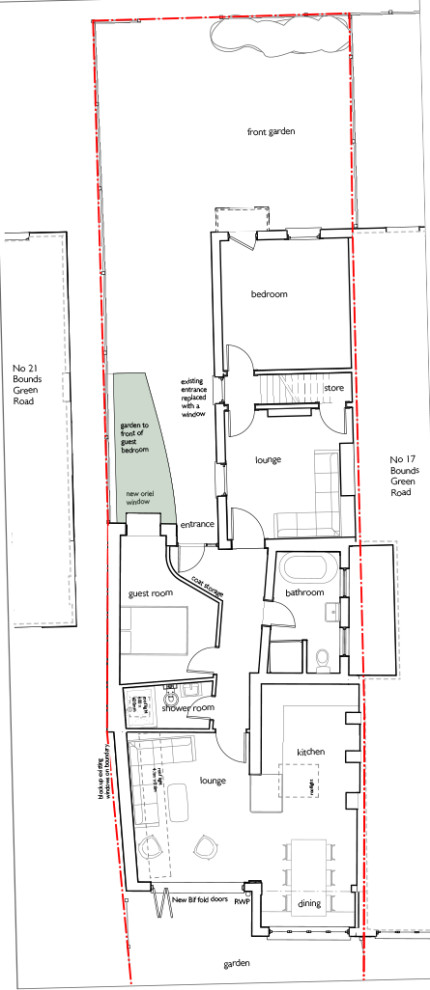
Ground floor reworking of a Locally Listed House in a Conservation Area